$545,000 Sale
Listed 227 days ago
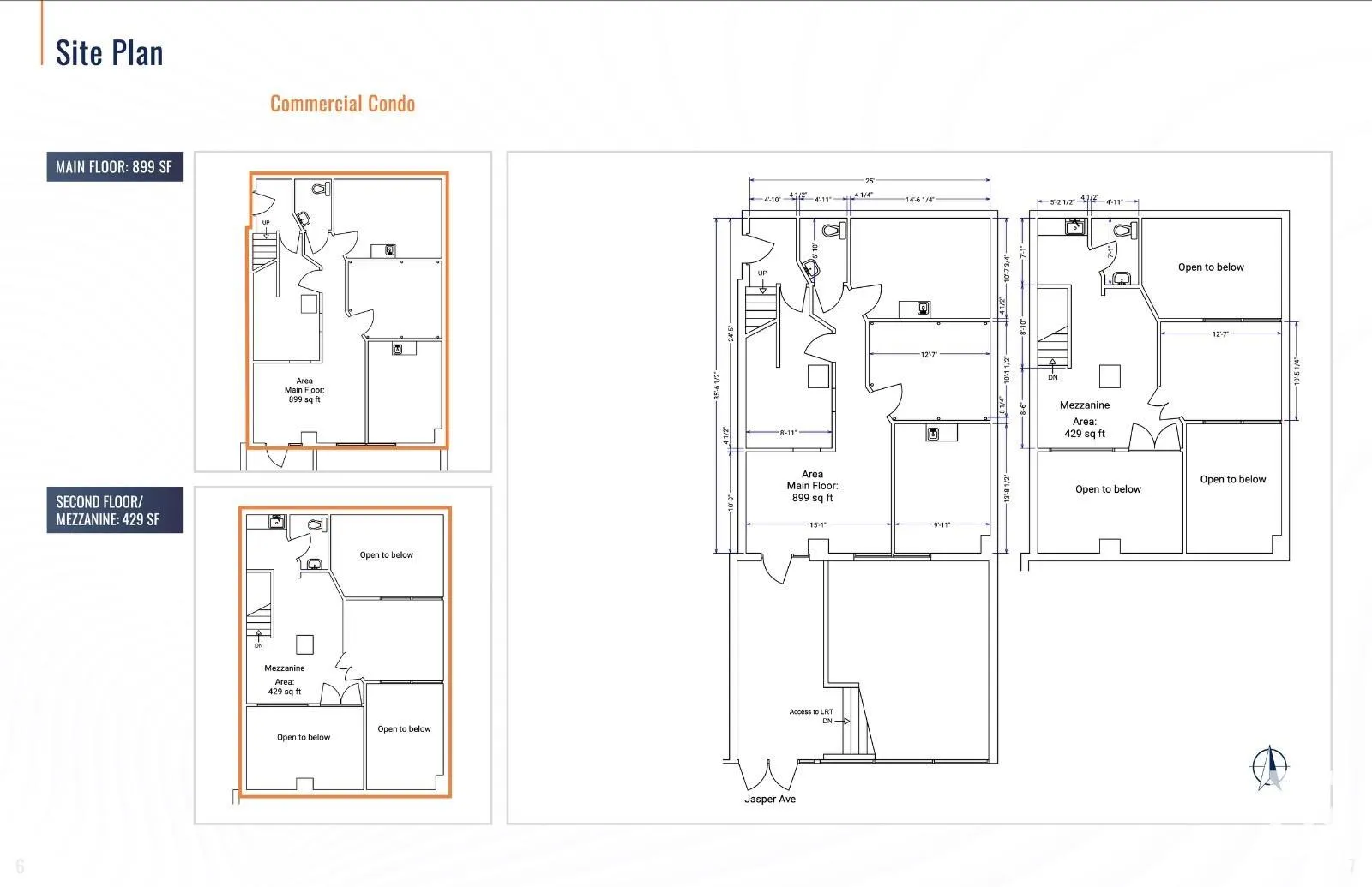
10020 JASPER Avenue
· 0
· 0
· -
· -
Key Facts
Key facts for 10020 JASPER Avenue
Property Type
Commercial
Parking
-
MLS®
E4422068
Size
-
Basement
-
Listed on
-
Lot size
-
Tax
-
Days on Website
-
Year Built
1968
Maintenance Fee
-
Description
Visit the Listing Brokerage (and/or listing REALTOR®) website to obtain additional information. Cambridge Lofts Commercial Condo is an exceptional property located on Jasper Avenue, one of Edmonton’s most prominent and bustling streets, offering high visibility and easy access to key amenities. Situ...ated in the heart of the downtown core and surrounded by office buildings, retail spaces, and residential developments, this location benefits from a steady flow of pedestrian traffic and a vibrant entertainment district.
Similar Properties (No results)
Courtesy of: Michelle A Plach, HonestDoor Inc